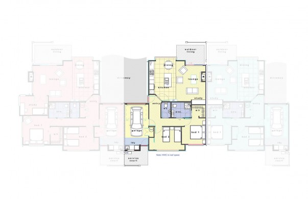
Lady Wigram Villas
All Villas Feature
- Ensuite and walk in wardrobe
- Under tile heating in bathroom
- Level entry shower
- Quality carpets and drapes
- Paved and landscaped garden
- Emergency call bell
- Gas fire in lounge
- Tiled entry
- Internal access to garage/laundry
- All whiteware supplied
- Heatpump
- Double glaze
